RU
другой город
Увійти
дизайн-студія інтер'єру

Київська квартира під здачу в оренду

BASE
0.00
-0%
0.00
Економія 0.00
Ця студія з непростим плануванням створена для сім'ї або декількох осіб, що можуть деякий час проживати разом
Характеристики

Дата
Березень 2024
Мансарда
Без мансарди
Площа
29,5 м.кв
Фото реалізації
Опис
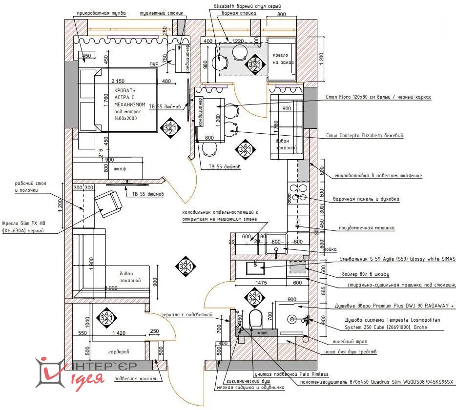
Так як ця київська квартира буде здаватись в довгострокову оренду, окрім спальні з двоспальним ліжком, в студії є ще 2 розкладних дивани, а на балконі - розкладне крісло. Також при вході в квартиру є окрема гардеробна кімната площею 3,1 м2, де можна зберігати не тільки верхній одяг та взуття, а й всі необхідні речі.

Ідеєю дизайну кухні-студії було створити комфортний інтер'єр так, щоб його вподобала більшість людей, тому обрали сіро-бежеві кольори для оформлення.

Використані матеріали, меблі та світильники:
- На стінах - декоративна штукатурка від "Caparol",
- Стіл обідній "Floro" (120x80 см),
- Стільці обідні "Concepto Elizabeth" бежевого кольору,
- Барний стілець на балконі "Elizabeth" від «Signal» (сірого кольору),
- На підлозі - плитка керамогранітна "Acero Bianco RECT Cerrad" (193x1202x8 мм)
- Точкові світильники "MAYTONI",
- Декоративні світильники "VASMAR",
- Бра лінійні "Black 100-H",
- На балконі - спот "Ideal Lux" та бра "ROUND WALL" діаметром 60 см.
Відгук клієнта
Владимир Михайлович
Задоволений роботою! Класна команда! Налаштований продовжувати співпрацю! Раджу друзям!

На сайті студії Інтер'єр-Ідея представлено виключно роботи наших дизайнерів.
Інтер'єр-Ідея - дизайн інтер'єру в м. Львів, Львівська область.