RU
другой город
Увійти
дизайн-студія інтер'єру

Дизайн холу дитячої стоматології "Медіна". «В очікуванні зубної феї»

BASE
0.00
-0%
0.00
Економія 0.00
Сучасне, стильне приміщення холу дитячої стоматології, в якому функціонально розміщена зручна рецепція та затишна зона для дітей.
Характеристики

Дата
Листопад 2022
Стиль
Мансарда
Без мансарди
Площа
52 м.кв
Опис
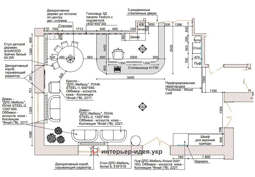
Розробка дизайну нежитлового приміщення завжди передбачає орієнтування не лише на побажання замовника, а й на потреби майбутніх відвідувачів. Під час роботи над цим проєктом необхідно було продумати акцентну стіну з вивіскою, практичне робоче місце для адміністратора, зону очікування та «дитячу зону».

На прохання власника стіни пофарбовані у світло- та темно-сірий кольори, які гармонійно доповнені синім та білим. А текстура дерева додала приміщенню затишку. Сині та бузкові дивани й крісла, картини доповнили  інтер’єр яскравістю та жвавістю.

Найперше, що бачать відвідувачі, - зона рецепції. Меблі рецепції складаються з основної стільниці (робочого стола) та вищої стійки, що частково розмежовує робоче місце адміністратора. Лінійність рецепції підкреслена стільницею, цоколем та люстрою чорного кольору. Акцентна стіна і стеля у цій зоні виділені об’ємними квадратами з підсвіткою. Також розміщенні зручні шафи для зберігання документації та інших предметів.

Особливої уваги потребувала «дитяча зона». Ідея декоративного дерева з круглим столиком  виявилася доволі вдалою. Казкове дерево тягнеться гілками у синє небо. Звідти грайливі промінчики освітлюють столик, де маленькі відвідувачі можуть помалювати або погратись іграшками. Такий чарівний дитячий куточок допоможе малечі зустріти Зубну фею з позитивним настроєм.

Приміщення холу відокремлене від коридору з кабінетами лікарів розсувними дверима з матовим склом. Поруч розташований столик та м’який пуф, щоб було зручно одягти бахіли. Стіна прикрашена дошкою з коркового дерева, де дітки могли б залишити на згадку свої малюнки.
Невеликий коридор з вбиральнею відокремлений від основного приміщення декоративною перфорованою перегородкою з візерунком дерева, який повторюється на дверях шафи для верхнього одягу.

Матеріали:
Для освітлення використані: вбудовані точкові світильники "KANLUX 26601"; підвісні світильники "NB LIGHT 28670", стельовий світильник "KANLUX 84551"; люстра "LAGUNA LIGHTING 39948".
Для оформлення стін використані: фарба "Caparol", гіпсові 3Д панелі Texturo – квадрати 450*450 з підсвіткою.
Стеля: плита підвісної стелі KNAUF AMF THERMATEX Varioline – Eiche (600*600*20); плита підвісної стелі KNAUF AMF Topic Prime (600*1200).
Підлога викладена плиткою Silkdust Light Grys RECT 598x598x9 Paradyz.
Дивани, крісла, столик – "ДЛС-Меблі".
Перфорована перегородка – Yourforest - Wood Leaf.

На сайті студії Інтер'єр-Ідея представлено виключно роботи наших дизайнерів.
Інтер'єр-Ідея - дизайн інтер'єру в м. Львів, Львівська область.