RU
другой город
Увійти
дизайн-студія інтер'єру

Дизайн інтер’єру холу офтальмологічної клініки. «Впевнений погляд»

BASE
0.00
-0%
0.00
Економія 0.00
Пастельні, ніжні кольори, затишний та зручний інтер’єр цього холу налаштують відвідувачів на позитивний прийом у лікаря-офтальмолога.
Характеристики

Дата
Листопад 2022
Стиль
Мансарда
Без мансарди
Площа
39 м.кв
Опис
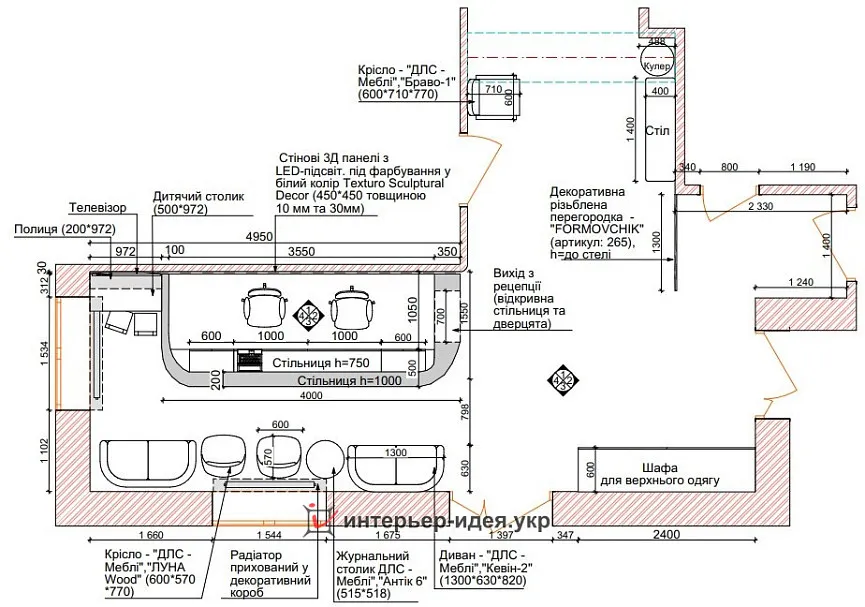
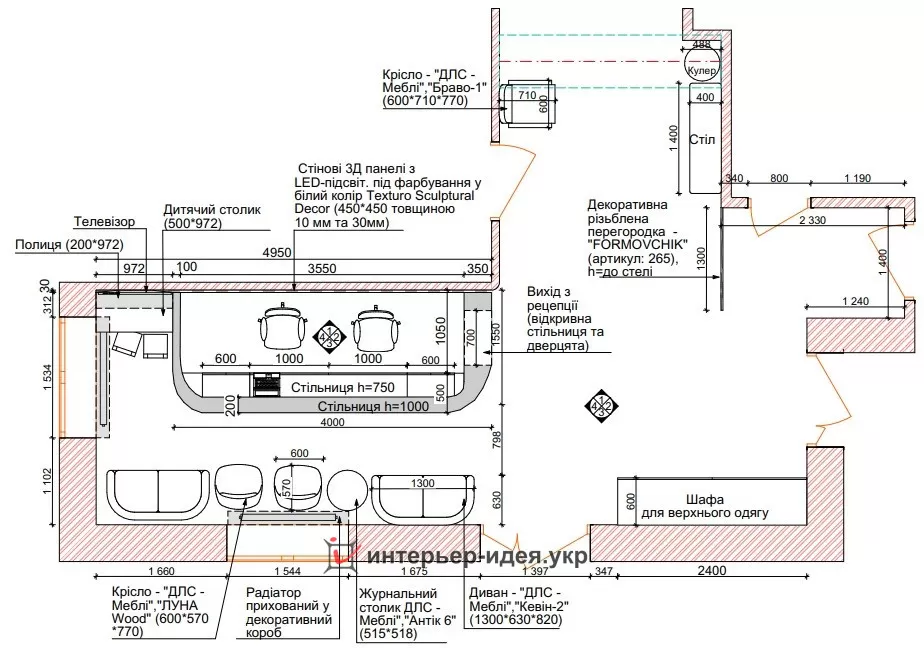
За побажанням замовника було спроектовано велику зручну рецепцію зі скляною перегородкою, де буде достатньо місця для роботи двох адміністраторів. Стійка меблів рецепції оздоблена дерев’яними рейками, пофарбованими у пастельний рожевий колір.

Стіна у зоні рецепції оформлена гіпсовими 3Д панелями Texturo (квадрати 450*450 з підсвіткою). Інші стіни пофарбовані у блідо-рожевий колір.
Навпроти рецепції – зручні дивани та крісла, де відвідувачі зможуть присісти і дочекатись своєї черги.
Біля вікна знайшлося місце і для компактної «Дитячої зони» зі столиком для малювання.

Невеликий коридор з вбиральнею відокремлений від основного приміщення декоративною перфорованою перегородкою. Поруч розміщений столик з серветками, стаканчиками для кулера.
Біля вхідних дверей передбачена шафа з дзеркалом для верхнього одягу відвідувачів.

Матеріали:
Для освітлення використані: вбудовані точкові світильники "RIGHT SELECTION 29244"; підвісний світильник "Anzazo - ARC".
Для оформлення стін використані: фарба "Caparol", гіпсові 3Д панелі Texturo – квадрати 450*450 з підсвіткою.
Стеля: плита підвісної стелі KNAUF AMF Topic Prime (600*1200).
Підлога викладена плиткою Silkdust Light Grys RECT  Paradyz (598*x598).
Дивани, крісла, столик – "ДЛС-Меблі".

На сайті студії Інтер'єр-Ідея представлено виключно роботи наших дизайнерів.
Інтер'єр-Ідея - дизайн інтер'єру в м. Львів, Львівська область.