RU
другой город
Увійти
дизайн-студія інтер'єру

Ресторан оформлений дерев'яними рейками

BASE
0.00
-0%
0.00
Економія 0.00
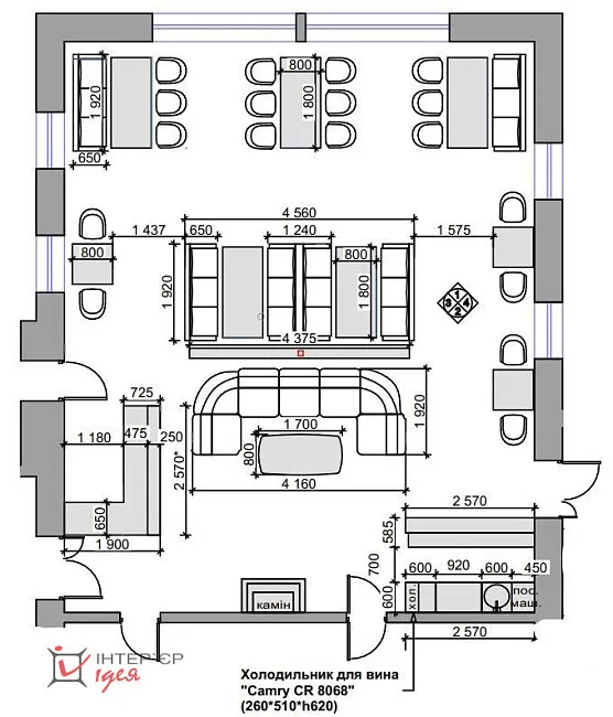
Це приміщення - приклад вдалого поєднання двох зон: лоббі для тих людей, що заселяються в цей готель, зі стійкою адміністратора, баром та м'яким п-образним диваном для очікування заселення. Та ресторана, де можна не тільки смачно обідати та вечеряти, а й просто приємно проводити час з друзями. Загалом в приміщенні можуть комфортно розміститися близько 40 осіб.
Характеристики

Дата
Березень 2024
Мансарда
Без мансарди
Площа
106 м.кв
Опис
При замовленні дизайну клієнт озвучив свої основні побажання: "Повинно бути легко, свіжо, світло, щоб людина почувала себе розслаблено і її ніщо не відволікало від природи, бо за вікнами ресторану - прекрасний вид на річку. Треба передбачити припливно-витяжну вентиляційну систему, що має централізоване управління, та систему кондиціонування. Можна використовувати дерев'яні елементи та необхідно залишити існуючу підлогу та камін".

Цим ми і керувалися при виборі стилю приміщення, розрахунку опуска стелі, підборі меблів та матеріалів оздоблення ресторану. 
Всі столи мають однакову ширину 80 см, щоб при потребі їх можна було об'єднувати в 1 фуршетний стіл. 

Використані матеріали, меблі та світильники:
- На стінах - декоративна штукатурка, дерев'яні рейки та стабілізований мох. По боках від 2 широких вікон - скло з малюнком та підсвіткою.
- Для проведення вентиляції та кондиціонування передбачено гіпсокартонні опуски стелі на 25 та 35 см. Для легкості сприйняття таких конструкцій передбачено приховану світлодіодну підсвітку.
- Точкові світильники "VASMAR" та "NOWODVORSKI".
- Підвісні світильники над столами - "PASO" та "PASO L". Біля каміну - підвіси "Eucalypt". 
- Бра "MJ-Light OREO BK+GD 16003" (26х8 см).
- П-подібний шкіряний диван "Візит (416х192 см), дивани "МЕНСОН" (192х65 см), крісла "ГРЕЙС" від "DLS". 
- Дивани (190х95 см) і крісла (100х95 см) "СКАЙЛІ".

На сайті студії Інтер'єр-Ідея представлено виключно роботи наших дизайнерів.
Інтер'єр-Ідея - дизайн інтер'єру в м. Львів, Львівська область.