RU
другой город
Увійти
дизайн-студія інтер'єру

Магазин "Пеппі" в ТРЦ "PIONEЕR"

BASE
0.00
-0%
0.00
Економія 0.00
Магазин дитячих шкарпеток - «Витівки допускаються»
Характеристики

Категорія
Дата
Грудень 2020
Стиль
Мансарда
Без мансарди
Площа
14,55 м.кв
Опис
Основне завдання:
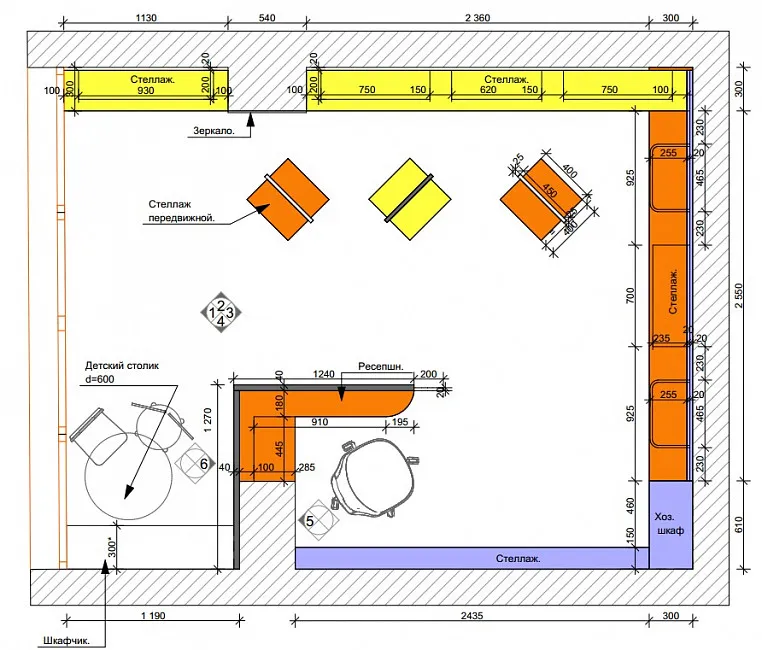
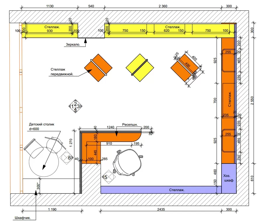
Оформлення магазину і розробка меблів для нього в поєднанні з сюжетною лінією, продиктованої назвою.

Відштовхуючись від назви і загальної ідеї, ми постаралися передати в інтер'єрі грайливість, химерність і безпосередність персонажа, в честь якого названий магазин.
Яскраві кольори, різні геометричні форми в оформленні стін і стелажів.
Магазин звертає на себе увагу.
І при цьому товар з елементами декору виглядає дуже органічно.
Ресепшн оформили в формі великої панчохи, яка піднімається до стелі.
За нею вивіска і стелаж.
У відкритих осередках можна за кольорами та розмірами розкладати носочки або колготки.
Це теж якийсь декоративний елемент.

Основні матеріали:
Стіни - фарбування. Орнамент на них - фарбування через трафарет. Меблі - ДСП.
Відгук клієнта
Костецкая Анастасия Петровна
Отзывчивый персонал, креативные дизайнеры, профессиональный подход к выполнению работы

На сайті студії Інтер'єр-Ідея представлено виключно роботи наших дизайнерів.
Інтер'єр-Ідея - дизайн інтер'єру в м. Львів, Львівська область.