RU
другой город
Увійти
дизайн-студія інтер'єру

Інтер'єр магазину "Suncity" в ТРЦ "Піонер"

BASE
0.00
-0%
0.00
Економія 0.00
Suncity - місто дитячих мрій.
Протистояння темного і світлого, сучасного і класичного.
Характеристики

Категорія
Дата
Січень 2021
Стиль
Мансарда
Без мансарди
Площа
108 м.кв
Фото реалізації
Опис
Дитяча зона - це ранкове місто. Світла, яскрава.
Вона оформлена в стилі, наближеному до провансу - світлі стіни, білі дерев'яні меблі.
Підліткова зона - місто на заході сонця. Стиль - лофт.
Темні цегляні стіни, меблі з металу і обпаленого дерева, підвісні світильники.
Все виглядає стильно, сучасно і молодіжно.
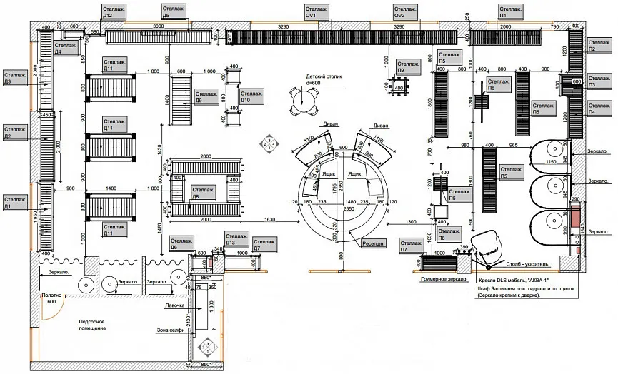
Основне, центральне місце в даному приміщенні займає ресепшн.
Він ніби роз'єднує і в той же час є сполучною ланкою даного інтер'єру.
Кругла форма і рейки повторюють контур міста натякають на назву магазину.
Яскрава стеля теж притягує увагу. Тепла і сонячна, вона об'єднує всі зони приміщення.
А світильники, як сонячні зайчики, хаотично розсипаються по ньому.
Особливо багато часу було приділено розробці дизайну зони селфі.
Впевнені, що вона не залишить нікого байдужим.
Також детально були опрацьовано зовнішній вигляд стелажів, в залежності від товару, що буде на ньому розташовуватися, і вікової категорії дітей.

Основні матеріали:
Стіни - шпалери під цеглу.
Меблі - дерево і метал.

На сайті студії Інтер'єр-Ідея представлено виключно роботи наших дизайнерів.
Інтер'єр-Ідея - дизайн інтер'єру в м. Львів, Львівська область.